一、含照明回路分配电箱(动力回路与照明回路分路配电)
内设200A-250A具有隔离功能的DZ20系列透明塑壳断路器作为主开关(与总配电箱分路设置断路器相适应);采用DZ20或 KDM-1型透明塑壳断路器作为动力分路、照明分路控制开关;各配电回路采用DZ20或KDM-1透明塑壳断路器作为控制开关;PE线连线螺栓、N线接线螺栓根据实际需要配置。

分配电箱示意图

分配电箱N线端子板接点图 分配电箱PE线端子板接点图

分配电箱电气系统图

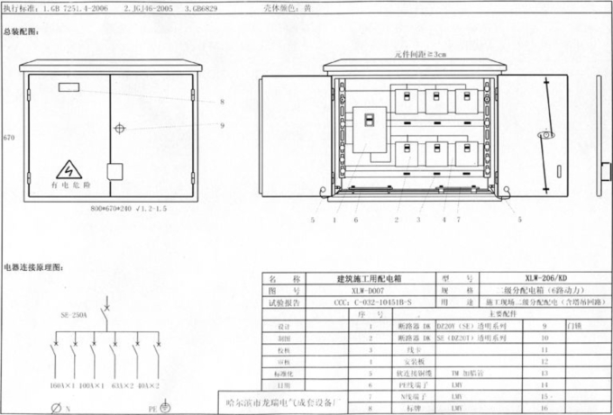
含塔吊回路分配电箱示意图(端子板接点及电气连接点图同上)

含塔吊回路分配电箱系统图
二、不含照明回路分配电箱

6-8回路分配电箱示意图
6回路分配电箱含塔吊回路(端子板接点及电气连接点图同上)

8回路分配电箱系统图

6回路含塔吊回路分配电箱系统图